三島コーポレーションの赤大路小学校区物件一覧
-
3LDK マンション
ハイム富田北棟■リフォーム 2025年7月完工予定 ■阪急京都線『富田駅』徒歩約6分 ■JR京都線『富田駅』徒歩約・・・
- 価格
1149万円
- 交通
阪急京都線 富田(大阪)駅 徒歩6分
- 所在地
高槻市富田町
- 面積(専有・建物)
66.36㎡
- 土地面積
-
- 築年月
1975年4月
- 価格
-
- 土地
高槻市赤大路町 建築条件付売土地■JR・阪急 2WAYアクセス可能 ■閑静な住宅街 ■近隣に商業施設多数あり ■赤大路小学校まで徒歩・・・
- 価格
1980万円
- 交通
阪急京都線 富田(大阪)駅 徒歩12分
- 所在地
高槻市赤大路町
- 面積(専有・建物)
-
- 土地面積
58.46㎡
- 築年月
-
- 価格
-
- 土地
高槻市富田町1丁目 売土地■建築条件無し売土地 ■お好きな工務店・ハウスメーカーにて建築可能 ■前面道路:約6.0m ■阪急・・・・
- 価格
2400万円
- 交通
阪急京都線 富田(大阪)駅 徒歩7分
- 所在地
高槻市富田町
- 面積(専有・建物)
-
- 土地面積
131.47㎡
- 築年月
-
- 価格
-
3LDK 戸建
高槻市北昭和台町 新築一戸建■東南角地につき、陽当たり・通風良好 ■約5帖のワイドバルコニー、約3帖のロフト付き ■長期優良住宅・・・
- 価格
5180万円
- 交通
阪急京都線 総持寺駅 徒歩4分
- 所在地
高槻市北昭和台町
- 面積(専有・建物)
87.6㎡
- 土地面積
88.65㎡
- 築年月
2024年2月
- 価格
-
3LDK 戸建
高槻市富田町5丁目 新築一戸建 2号地■ZEH水準・省エネ住宅 ■1階に洗面・浴室を設置 ■間口5.7m ■駐車1台可能 ■バルコニー3箇・・・
- 価格
3799万円
- 交通
阪急京都線 富田(大阪)駅 徒歩10分
- 所在地
高槻市富田町
- 面積(専有・建物)
105.47㎡
- 土地面積
62.05㎡
- 築年月
新築
- 価格
-
3LDK 戸建
高槻市富田町5丁目 新築一戸建 1号地■ZEH水準・省エネ住宅 ■キッチン横にパントリーを設計 ■間口5.5m ■駐車1台可能 ■バルコニ・・・
- 価格
3799万円
- 交通
阪急京都線 富田(大阪)駅 徒歩10分
- 所在地
高槻市富田町
- 面積(専有・建物)
109.32㎡
- 土地面積
61.51㎡
- 築年月
新築
- 価格
-
- 土地
高槻市赤大路町 売土地■JR京都線『摂津富田駅』徒歩約11分 ■阪急京都線『富田駅』徒歩約12分 ■近隣施設充実 ■建て替・・・
- 価格
890万円
- 交通
東海道・山陽本線 摂津富田駅 徒歩11分
- 所在地
高槻市赤大路町
- 面積(専有・建物)
-
- 土地面積
41.59㎡
- 築年月
-
- 価格
-
3DK 戸建
高槻市赤大路町 中古一戸建■JR京都線『摂津富田駅』徒歩約11分 ■阪急京都線『富田駅』徒歩約12分 ■近隣施設充実 ■建て替・・・
- 価格
890万円
- 交通
東海道・山陽本線 摂津富田駅 徒歩11分
- 所在地
高槻市赤大路町
- 面積(専有・建物)
44.23㎡
- 土地面積
41.59㎡
- 築年月
1968年12月
- 価格
-
3DK 戸建
高槻市富田丘町 中古一戸建 オーナーチェンジ物件■オーナーチェンジ物件 ■2013年大幅改装 ■阪急『富田駅』徒歩7分 ■JR『摂津富田駅』徒歩9分
- 価格
790万円
- 交通
阪急京都線 富田(大阪)駅 徒歩7分
- 所在地
高槻市富田丘町
- 面積(専有・建物)
35.13㎡
- 土地面積
31.6㎡
- 築年月
1965年5月
- 価格
-
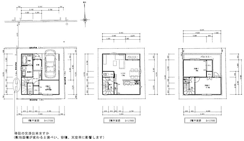
4LDK 戸建
高槻市富田町1丁目 車庫・倉庫付戸建■阪急京都線『富田駅』徒歩3分 ■JR線『摂津富田駅』徒歩5分 ■駅近!角地! ■視認性も良好です
- 価格
3980万円
- 交通
阪急京都線 富田(大阪)駅 徒歩3分
- 所在地
高槻市富田町
- 面積(専有・建物)
113.88㎡
- 土地面積
62.03㎡
- 築年月
2002年9月
- 価格