三島コーポレーションの新築分譲特集物件一覧
-
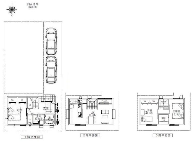
4LDK 戸建
高槻市日吉台二番町 新築一戸建A号地■有効土地面積約41.3坪 ■前面道路幅員約6.1m ■4LDK ■陽当たり良好 ■閑静な住宅地
- 価格
6180万円
- 交通
東海道・山陽本線 高槻駅 バス20分 東公園 バス停徒歩3分
- 所在地
高槻市日吉台二番町
- 面積(専有・建物)
113.95㎡
- 土地面積
136.85㎡
- 築年月
新築
- 価格
-
3LDK 戸建
摂津市鳥飼和道1丁目 新築一戸建◆令和8年2月完成済 ◆大阪モノレール南摂津徒歩9分 ◆土地面積87.7㎡、延床面積103.42㎡ ・・・
- 価格
2880万円
- 交通
大阪モノレール 南摂津駅 徒歩9分
- 所在地
摂津市鳥飼和道
- 面積(専有・建物)
103.42㎡
- 土地面積
87.7㎡
- 築年月
新築
- 価格
-
3LDK 戸建
高槻市日吉台四番町 新築一戸建■全2区画A号地 ■土地面積約44.9坪 ■前面道路幅員約12m ■前面道路に歩道有り
- 価格
4800万円
- 交通
東海道・山陽本線 高槻駅 バス14分 中央公園 バス停徒歩5分
- 所在地
高槻市日吉台四番町
- 面積(専有・建物)
100.44㎡
- 土地面積
148.73㎡
- 築年月
2025年2月
- 価格
-
3LDK 戸建
高槻市安岡寺町5丁目 新築一戸建1号地■全3区画1号地 ■南東角地 陽当たり・通風良好 ■土地面積約24.3坪 ■南東側道路幅員約8m ■・・・
- 価格
4280万円
- 交通
東海道・山陽本線 高槻駅 バス20分 松が丘 バス停徒歩5分
- 所在地
高槻市安岡寺町
- 面積(専有・建物)
94.4㎡
- 土地面積
80.59㎡
- 築年月
新築
- 価格
-
2SLDK 戸建
高槻市安岡寺町5丁目 新築一戸建2号地■全3区画2号地 ■南東向き 陽当たり良好 ■土地面積約28.4坪 ■南東側道路幅員約8m ■2LD・・・
- 価格
3980万円
- 交通
東海道・山陽本線 高槻駅 バス20分 松が丘 バス停徒歩5分
- 所在地
高槻市安岡寺町
- 面積(専有・建物)
86.94㎡
- 土地面積
93.94㎡
- 築年月
新築
- 価格
-
2SLDK 戸建
高槻市安岡寺町5丁目 新築一戸建3号地■全3区画3号地 ■土地面積約25.9坪 ■間口約5.9m ■2LDK+サービスルーム ■閑静な住宅・・・
- 価格
3980万円
- 交通
東海道・山陽本線 高槻駅 バス20分 松が丘 バス停徒歩5分
- 所在地
高槻市安岡寺町
- 面積(専有・建物)
82.38㎡
- 土地面積
85.8㎡
- 築年月
新築
- 価格
-
4LDK 戸建
高槻市川添1丁目 新築一戸建■2階建の4LDK ■近隣でモデルハウスが完成しました ■JR・阪急の2WAYアクセス可能 ■収納ス・・・
- 価格
3780万円
- 交通
阪急京都線 富田(大阪)駅 徒歩18分
- 所在地
高槻市川添
- 面積(専有・建物)
83.9㎡
- 土地面積
68.36㎡
- 築年月
新築
- 価格
-
2SLDK 戸建
高槻市日吉台五番町 新築一戸建3号地■全3区画3号地 ■土地面積約50.6坪 ■高台 陽当たり・眺望良好 ■二面接道 通風良好 ■駐車2・・・
- 価格
6480万円
- 交通
東海道・山陽本線 高槻駅 バス23分 南公園 バス停徒歩2分
- 所在地
高槻市日吉台五番町
- 面積(専有・建物)
105.2㎡
- 土地面積
167.29㎡
- 築年月
新築
- 価格
-
2SLDK 戸建
高槻市日吉台五番町 新築一戸建2号地■全3区画2号地 ■土地面積約50.6坪 ■高台 陽当たり・眺望良好 ■二面接道 通風良好 ■駐車2・・・
- 価格
5980万円
- 交通
東海道・山陽本線 高槻駅 バス23分 南公園 バス停徒歩2分
- 所在地
高槻市日吉台五番町
- 面積(専有・建物)
108.65㎡
- 土地面積
167.29㎡
- 築年月
新築
- 価格
-
4LDK 戸建
高槻津之江北町 新築一戸建■洗面所・浴室等の水回りを2階に集約し生活動線に配慮した間取り!! ■広々とした17.25帖のLDK・・・
- 価格
3880万円
- 交通
東海道・山陽本線 摂津富田駅 徒歩22分
- 所在地
高槻市津之江北町
- 面積(専有・建物)
134.38㎡
- 土地面積
69.35㎡
- 築年月
新築
- 価格