三島コーポレーションの築10年以内特集物件一覧
-  3LDK 戸建 
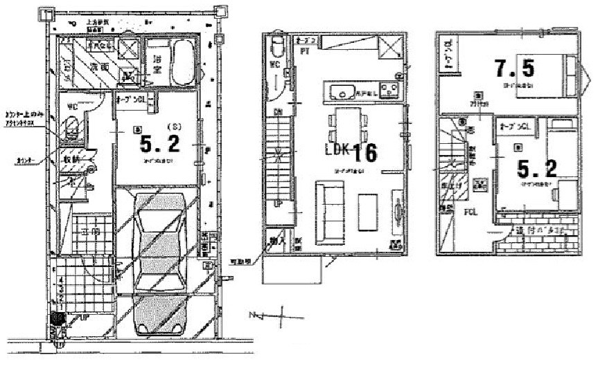
 茨木市南春日丘6丁目 新築一戸建◆南西向き陽当たり良好 ◆閑静な住宅街 ◆大阪モノレール「阪大病院前」駅徒歩10分 - 価格 4980万円 
- 交通 大阪モノレール彩都線 阪大病院前駅 徒歩10分 
- 所在地 茨木市南春日丘 
- 面積(専有・建物) 83.58㎡ 
- 土地面積 172.64㎡ 
- 築年月 新築 
 
- 価格 
-  4LDK 戸建 
 茨木市彩都やまぶき3丁目 中古一戸建■モノレール彩都西駅徒歩12分 ■4LDK ■令和4年築 - 価格 6199万円 
- 交通 大阪モノレール彩都線 彩都西駅 徒歩12分 
- 所在地 茨木市彩都やまぶき 
- 面積(専有・建物) 103.92㎡ 
- 土地面積 150.16㎡ 
- 築年月 2022年3月 
 
- 価格 
-  2SLDK 戸建 
 高槻市東五百住町2丁目 新築一戸建■阪急富田駅・JR摂津富田駅ともに徒歩約15分 ■制震ダンパーで安心な家 ■耐震等級3取得住宅 ■フ・・・ - 価格 3680万円 
- 交通 阪急京都線 富田(大阪)駅 徒歩16分 
- 所在地 高槻市東五百住町 
- 面積(専有・建物) 89.42㎡ 
- 土地面積 59.9㎡ 
- 築年月 新築 
 
- 価格 
-  2SLDK 戸建 
 高槻市城南町3丁目 新築一戸建■南向きにつき陽当り良好 ■耐震等級3 ■断熱等級5 ■シャッター付きインナーガレージ ■浴室暖房乾・・・ - 価格 3980万円 
- 交通 阪急京都線 高槻市駅 徒歩21分 
- 所在地 高槻市城南町 
- 面積(専有・建物) 106.06㎡ 
- 土地面積 56.87㎡ 
- 築年月 新築 
 
- 価格 
-  3LDK 戸建 
 高槻市奥天神町3丁目 新築一戸建■四方空き・高台のため、陽当たり通風良好 ■土地面積約30.8坪 ■北西側前面道路幅員約6.9m ■・・・ - 価格 5480万円 
- 交通 東海道・山陽本線 高槻駅 バス8分 奥天神 バス停徒歩7分 
- 所在地 高槻市奥天神町 
- 面積(専有・建物) 98.06㎡ 
- 土地面積 102.05㎡ 
- 築年月 新築 
 
- 価格 
-  3LDK 戸建 
 高槻市大塚町2丁目1号地 新築一戸建☆駐車場も縦列2台可♪ ☆LDK18帖になり、収納スペースも充実しております。 ☆耐震等級3、フラッ・・・ - 価格 3530万円 
- 交通 阪急京都線 高槻市駅 バス14分 大塚 バス停徒歩7分 
- 所在地 高槻市大塚町 
- 面積(専有・建物) 93.81㎡ 
- 土地面積 112.4㎡ 
- 築年月 新築 
 
- 価格 
-  3LDK 戸建 
 茨木市北春日丘2丁目 新築一戸建■3LDK ■建物面積:120.47㎡ ■角地 風通良好 ■閑静な住宅地 - 価格 5980万円 
- 交通 大阪モノレール彩都線 公園東口駅 バス4分 春光園 バス停徒歩11分 
- 所在地 茨木市北春日丘 
- 面積(専有・建物) 120.47㎡ 
- 土地面積 175.81㎡ 
- 築年月 新築 
 
- 価格 
-  3LDK 戸建 
 高槻市塚原1丁目 新築一戸建■角地につき通風良好 ■南向きにつき陽当たり良好 ■閑静な住宅街 ■全居室収納あり ウォークインクロ・・・ - 価格 4980万円 
- 交通 東海道・山陽本線 摂津富田駅 バス20分 塚原(大阪府) バス停徒歩5分 
- 所在地 高槻市塚原 
- 面積(専有・建物) 114.27㎡ 
- 土地面積 115.39㎡ 
- 築年月 新築 
 
- 価格 
-  3LDK 戸建 
 茨木市東太田4丁目 中古一戸建★木造2階建 3LDK+駐車スペース ★JR京都線「摂津富田」駅徒歩21分 ★土地面積 87.21㎡・・・ - 価格 3780万円 
- 交通 東海道・山陽本線 摂津富田駅 徒歩21分 
- 所在地 茨木市東太田 
- 面積(専有・建物) 91.13㎡ 
- 土地面積 87.21㎡ 
- 築年月 2017年5月 
 
- 価格 
-  3LDK 戸建 
 摂津市鳥飼西1丁目 中古一戸建★大阪モノレール南摂津駅徒歩27分 ★太陽光発電・ オール電化 ★駐車場2台可 ★ウォークインクロー・・・ - 価格 3180万円 
- 交通 大阪モノレール 南摂津駅 徒歩25分 
- 所在地 摂津市鳥飼西 
- 面積(専有・建物) 100.84㎡ 
- 土地面積 108.48㎡ 
- 築年月 2022年10月 
 
- 価格 


 
  
  
  
  
  
  
  
  
  
  
  
  
  
  
  
  
  
  
 